例:毛坯為150㎜×70㎜×20㎜塊料,要求銑出如圖2-25所示的橢球面,工件材料為蠟塊。

1.根據圖樣要求、毛坯及前道工序加工情況,確定工藝方案及加工路線
1)以底面為主要定位基準,兩側用壓板壓緊,固定于銑床工作臺上。
2)加工路線
Y方向以行距小于球頭銑刀逐步行切形成橢球形成。
2.選擇機床設備
根據零件圖樣要求,選用經濟型數控銑床即可達到要求。故選用華中Ⅰ型(ZJK7532A型)數控鉆銑床。
3.選擇刀具
球頭銑刀大小f6mm。
4.確定切削用量
切削用量的具體數值應根據該機床性能、相關的手冊并結合實際經驗確定,詳見加工程序。
5.確定工件坐標系和對刀點
在XOY平面內確定以工件中心為工件原點,Z方向以工件表面為工件原點,建立工件坐標系,如圖2-25所示。
采用手動對刀方法把0點作為對刀點。
6.編寫程序(用于華中I型銑床)
按該機床規定的指令代碼和程序段格式,把加工零件的全部工藝過程編寫成程序清單。該工件的加工程序如下:
%8005(用行切法加工橢園臺塊,X,Y按行距增量進給)
#10=100 ;毛坯X方向長度
#11=70 ;毛坯Y方向長度
#12=50 ;橢圓長軸
#13=20 ;橢圓短軸
#14=10 ;橢園臺高度
#15=2 ;行距步長
G92 X0 Y0 Z[#13+20]
G90G00 X[#10/2] Y[#11/2] M03
G01 Z0
X[-#10/2] Y[#11/2]
G17G01 X[-#10/2] Y[-#11/2]
X[#10/2]
Y[#11/2]
#0=#10/2
#1=-#0
#2=#13-#14
#5=#12*SQRT[1-#2*#2/#13/#13]
G01 Z[#14]
WHILE #0 GE #1
IF ABS[#0] LT #5
#3=#13*SQRT[1-#0*#0/[#12*#12]]
IF #3 GT #2
#4=SQRT[#3*#3-#2*#2]
G01 Y[#4] F400
G19 G03 Y[-#4] J[-#4] K[-#2]
ENDIF
ENDIF
G01 Y[-#11/2] F400
#0=#0-#15
G01 X[#0]
IF ABS[#0] LT #5
#3=#13*SQRT[1-#0*#0/[#12*#12]]
IF #3 GT #2
#4=SQRT[#3*#3-#2*#2]
G01 Y[-#4] F400
G19 G02 Y[#4] J[#4] K[-#2]
ENDIF
ENDIF
G01 Y[#11/2] F1500
#0=#0-#15
G01 X[#0]
ENDW
G00 Z[#13+20] M05
G00 X0 Y0
M02
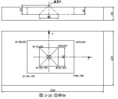
例:毛坯200㎜×100㎜×30㎜塊料,要求銑出如圖2-26所示的四棱臺,工件材料為蠟塊。

掌握數控編程基本方法并在此基礎上有更大的提高,必須進行大量的編程練習和實際操作,在實踐中積累豐富的經驗。編程前,要做大量的準備工作,如:
了解數控機床的性能和規格;
熟悉數控系統的功能及操作;
加強工藝、刀具和夾具知識的學習,掌握工藝編制技術,合理選擇刀具、夾具及切削用量等,將工藝等知識融入程序,提高程序的質量;
養成良好的編程習慣和風格,如程序中要使用程序段號、字與字之間要有空格、多寫注釋語句等,使程序清晰,便于閱讀和修改;
編程時盡量使用分支語句、主程序及宏功能指令,以減少主程序的長度。
具體加工工藝和裝夾方法和其余各題一樣,這里略。
程序如下:(用于華中I型銑床)
%1978
#10=100 ;底平面EF的長度,可根據加工要求任定
#0=#10/2 ;起刀點的橫座標(動點)
#100=20 ;C點的橫座標
#1=20 ;C點和G點的縱向距離
#11=70 ;FG的長度
#20=-#10/2 ;E點的橫座標
#15=3 ;步長
#4=16 ;棱臺高
#5=3 ;棱臺底面相對于Z=0平面的高度
#6=20 ;C點的縱座標
G92 X0 Y0 Z[#4+#5+2] ;MDI對刀點Z向距毛坯上表面距離
G00 X0 Y0
G00 Z[#4+10] M03
G01 X[#0] Y[#11/2] Z[#5] ;到G點
WHILE #0 GE #20 ;銑棱臺所在的凹槽
IF ABS[#0] LE #100
G01 Y[#1] F100
X0 Y0 Z[#4+#5]
X[#0] Y[-#1] Z[#5]
Y[-#11/2]
ENDIF
G01 Y[-#11/2] F100
#0=#0-#15
G01 X[#0]
IF ABS[#0] le #100
G01 Y[-#1]
X0 Y0 Z[#4+#5]
X[#0] Y[#1] Z[#5]
Y[#11/2]
ENDIF
G01 Y[#11/2]
#0=#0-#15
G01 X[#0]
ENDW
G01 Z[#4+20]
X0 Y0
X[#1] Y[#1] Z[#5]
WHILE ABS[#6] LE #1 ;銑棱臺斜面
#6=#6-#15
G01 Y[#6]
X0 Y0 Z[#4+#5]
X[-#1] Y[-#6] Z[#5]
G01 Y[-#6+#15]
X0 Y0 Z[#4+#5]
X[#1] Y[#6] Z[#5]
ENDW
G00 Z[#4+20]
G00 X0 Y0
M05
M30